Ihr regionaler Baupartner im Münsterland - RIESENBECK WOHNBAU RIESENBECK WOHNBAU GmbH   Von-Siemens-Str. 10 A  48291 Telgte   Telefon 02504 88 96 79 0   Fax 02504 88 96 79 9   e-Mail: info@riesenbeck-wohnbau.de
Ihr regionaler Baupartner im Münsterland - RIESENBECK WOHNBAU
<< HAUS ZURÜCK HAUS VOR >>  

ZURÜCK

 

HAUS AHLEN

Daten:

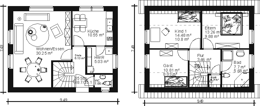
Wohnfläche gesamt 91,87 qm
Dachneigung 45 Grad
Drempelhöhe 75 cm


 

       
Visualisierungsansichten Strassen- und Gartenseite
 



Grundrisse Erdgeschoss + Dachgeschoss


 

Hinweise

Abbildungen können Sonderleistungen enthalten!

Durch unterschiedliche Wandstärken bei Putz- bzw. Klinkerbauten sowie durch
unterschiedliche Dachaufbauten/ Konstruktionen usw. können sich unterschiedliche
Wohnflächen ergeben (bei gleich bleibenden Außenmaßen)!

ZURÜCK

 

www.haushoch-webdesign.de